プラティーク新宿原町 701号室 新宿区原町[マンション]

プラティーク新宿原町 701号室 新宿区原町[マンション]

マンション[新宿区原町]

物件詳細

プラティーク新宿原町 701号室 新宿区原町[マンション]

プラティーク新宿原町 701号室 新宿区原町[マンション] の物件詳細ページです。

物件種別: マンション

お問い合わせ番号:NN0000095930

間取り(面積)

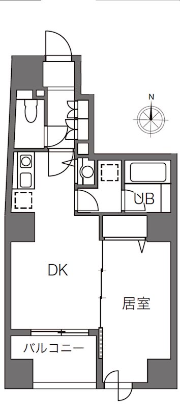
1DK

( 36.25㎡ )

賃料(管理費等)

15.4万円

( 12000円 )

交通: 都営大江戸線 牛込柳町駅 徒歩2分

敷金/礼金: 1ヶ月 / -

保証金/敷引/償却金: - / - / -

所在地: 新宿区原町

築年月: 2019年4月

ポイント

築6年/鉄筋コンクリートの魅力的なお部屋です 1DK・エレベーター/角住戸/1フロア1住戸/敷地内ゴミ置き場/宅配BOXの便利な物件で快適に暮らしませんか。IHクッキングヒーター/システムキッチンで毎日のお料理にもたいへん便利です。フローリング/浴室乾燥/温水洗浄便座/脱衣所/シューズボックスであると設備も充実しています お部屋探しなら株式会社住建ハウジングにお任せください。モニタ付オートロック/ディンプルキー/ダブルディンプルキー/オートロックなので一人暮らしでも安心です。

問い合わせ(無料)

TEL: 03-5385-7551

お問い合わせ番号: NN0000095930

QRコード

資料請求などはこちら

問い合わせ(無料)

TEL: 03-5385-7551

お問い合わせ番号: NN0000095930

スタッフからのコメント

便利なフローリング/浴室乾燥/温水洗浄便座/脱衣所/シューズボックスなどステキな設備もバッチリです IHクッキングヒーター/システムキッチン設置でお料理にもとても便利ですよ 築6年の魅力的な物件はこちら。素敵な1DK エレベーター/角住戸/1フロア1住戸/敷地内ゴミ置き場/宅配BOXの物件で快適にお過ごしいただけますよ。モニタ付オートロック/ディンプルキー/ダブルディンプルキー/オートロック 充実した設備で安心して生活できる物件ですよ。株式会社住建ハウジングが快適なお部屋探しを徹底サポートいたします。

セールスポイント

特徴 南面バルコニー,1フロア1住戸,オートロック,モニタ付オートロック,ディンプルキー,ダブルディンプルキー,全室南向き,角住戸
設備 エレベーター,敷地内ゴミ置き場,宅配BOX,システムキッチン,IHクッキングヒーター,バス・トイレ別,浴室乾燥,脱衣所,温水洗浄便座,洗面台,エアコン,ネット使用料不要,TVインターホン,ガス給湯,フローリング,室内洗濯機置場,クローゼット,シューズボックス,玄関収納,人感照明センサー,ガス(都市ガス),下水(公共下水),水道(専用メーター)
光ファイバー エレベーター 1基
天井高 空調 1基

物件概要

物件名 プラティーク新宿原町 701号室
物件所在地 東京都新宿区原町2丁目13-5
交通機関 都営大江戸線 牛込柳町駅 徒歩2分
専有面積 36.25㎡
所在階/地上階数 7 / 10 部屋向き
建物構造 鉄筋コンクリート 築年月 2019年4月
総戸数 10
賃料 15.4万円 管理費等 12000円
敷金 1ヶ月 礼金 -
保証金 - 更新料 新賃料 1ヶ月
積増し敷金 - 積増し理由
その他一時金 鍵交換費用:29,700円 24h緊急サポート費:16,800円 その他費用
損害保険 有 損保名称:ジャパン少額短期保険 料金:17000円 損保期間:24ヶ月 
契約形態 普通借家契約 期間 契約期間:2年
保証会社 必須 初回保証委託料 賃料・共益費の50% 年間保証料1万円 口座振替手数料550円 保証人代行 必須
法人契約
現況 居住中 入居時期 予定 2026年1月中旬
入居条件 ペット(不可),事務所(相談),楽器等の使用(不可),二人(可),法人(可)

その他

取引態様 仲介先物 自社管理番号 NN0000095930
情報更新日 2025年11月22日 次回更新予定日 2025年12月22日
不動産会社コード 2108376 物件管理コード 1115362796550000091637
  • ※間取りの「S」はサービスルーム(納戸)です。
  • ※QRコードは(株)デンソーウェーブの登録商標です。

資料請求などはこちら

問い合わせ(無料)

TEL: 03-5385-7551

お問い合わせ番号: NN0000095930

お問い合わせ先:住建ハウジング中野

所在地 : 東京都中野区本町4丁目21-16
TEL : 03-5385-7551
免許番号 : 東京都知事(14)第27594号
加盟団体 : 公益社団法人全国宅地建物取引業保証協会会員/公益社団法人東京都宅地建物取引業協会会員/首都圏不動産公正取引協議会加盟

この部屋を見学予約

ホームへ戻る