クレイノ高円寺 102号室 杉並区高円寺南[マンション]

クレイノ高円寺 102号室 杉並区高円寺南[マンション]

マンション[杉並区高円寺南]

物件詳細

クレイノ高円寺 102号室 杉並区高円寺南[マンション]

クレイノ高円寺 102号室 杉並区高円寺南[マンション] の物件詳細ページです。

物件種別: マンション

お問い合わせ番号:NN0000096113

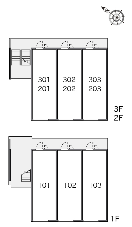
間取り(面積)

1K

( 21.11㎡ )

賃料(管理費等)

10.1万円

( 5500円 )

交通: 東京メトロ丸ノ内線 東高円寺駅 徒歩3分

敷金/礼金: - / 1ヶ月

保証金/敷引/償却金: - / - / -

所在地: 杉並区高円寺南

築年月: 2016年7月

ポイント

築9年 1K 魅力的な物件ですよ。防犯カメラを備えており安心して生活できます。便利な浴室乾燥/温水洗浄便座/給湯/洗面所独立/エアコンで快適な生活はいかがでしょうか お問い合わせは株式会社住建ハウジングまで。1K 21.11㎡のお部屋で快適にお過ごしいただけますよ。東京メトロ丸ノ内線 東高円寺駅まで徒歩3分の物件に空きが出ました。

問い合わせ(無料)

TEL: 03-5385-7551

お問い合わせ番号: NN0000096113

QRコード

資料請求などはこちら

問い合わせ(無料)

TEL: 03-5385-7551

お問い合わせ番号: NN0000096113

スタッフからのコメント

築9年のお部屋のご紹介ですよ。浴室乾燥/温水洗浄便座/給湯で設備が揃った素敵な物件となっています。1Kタイプの便利なお部屋で快適に暮らしませんか。防犯カメラを備えており充実した設備で入居後も安心して生活できますよ。快適な暮らしは株式会社住建ハウジングにお任せください。

セールスポイント

特徴 防犯カメラ
設備 電気コンロ,バス・トイレ別,浴室乾燥,温水洗浄便座,洗面所独立,エアコン,家電付,家具付,給湯,室内洗濯機置場
天井高 空調 1基

物件概要

物件名 クレイノ高円寺 102号室
物件所在地 東京都杉並区高円寺南1丁目22-5
交通機関 東京メトロ丸ノ内線 東高円寺駅 徒歩3分
東京メトロ丸ノ内線 新中野駅 徒歩15分
専有面積 21.11㎡
所在階/地上階数 1 / 3 部屋向き 南西
建物構造 鉄骨 築年月 2016年7月
総戸数 9
賃料 10.1万円 管理費等 5500円
敷金 - 礼金 1ヶ月
保証金 - 更新料 16,500円
積増し敷金 - 積増し理由
その他一時金 室内清掃費用:41,800円 その他費用
損害保険 有 料金:26680円 損保期間:24ヶ月 
契約形態 普通借家契約 期間 契約期間:2年
保証会社 必須 保証会社の利用:利用料の100%~120% 保証人代行 必須
現況 入居時期 即時 

その他

取引態様 仲介先物 自社管理番号 NN0000096113
情報更新日 2025年11月28日 次回更新予定日 2025年12月28日
不動産会社コード 2108376 物件管理コード 1115362796550000091820
  • ※間取りの「S」はサービスルーム(納戸)です。
  • ※QRコードは(株)デンソーウェーブの登録商標です。

資料請求などはこちら

問い合わせ(無料)

TEL: 03-5385-7551

お問い合わせ番号: NN0000096113

お問い合わせ先:住建ハウジング中野

所在地 : 東京都中野区本町4丁目21-16
TEL : 03-5385-7551
免許番号 : 東京都知事(14)第27594号
加盟団体 : 公益社団法人全国宅地建物取引業保証協会会員/公益社団法人東京都宅地建物取引業協会会員/首都圏不動産公正取引協議会加盟

この部屋を見学予約

ホームへ戻る