ZOOM戸越銀座 302号室 品川区戸越[マンション]

ZOOM戸越銀座 302号室 品川区戸越[マンション]

マンション[品川区戸越]

物件詳細

ZOOM戸越銀座 302号室 品川区戸越[マンション]

 

ZOOM戸越銀座 302号室 品川区戸越[マンション] の物件詳細ページです。

物件種別: マンション

お問い合わせ番号:NN0000099355

間取り(面積)

1LDK

( 40㎡ )

賃料(管理費等)

17.2万円

( 13000円 )

交通: 都営浅草線 戸越駅 徒歩5分

敷金/礼金: 1ヶ月 / 1ヶ月

保証金/敷引/償却金: - / - / -

所在地: 品川区戸越

築年月: 2018年3月

ポイント

素敵な1LDK 40.00㎡の過ごしやすい物件です。ぜひ株式会社住建ハウジングまでお問い合わせ下さいませ。便利な温水洗浄便座が設置されています ディンプルキーを備えておりセキュリティ面も重視しております。築8年/鉄筋コンクリートの物件ですよ。2口コンロ/ガスコンロ設置済/グリル/ガスキッチン/ガスコンロ設置で毎日のお料理も楽しめます。都営浅草線 戸越駅まで徒歩5分。

問い合わせ(無料)

TEL: 03-5465-2111

お問い合わせ番号: NN0000099355

QRコード

資料請求などはこちら

問い合わせ(無料)

TEL: 03-5465-2111

お問い合わせ番号: NN0000099355

スタッフからのコメント

ディンプルキー/ダブルロック/防犯カメラ/オートロック/管理室で入居後も安心して生活できます。2口コンロ/ガスコンロ設置済/グリル設置で毎日のお料理にも大変便利です 株式会社住建ハウジングが安心のお部屋探しを徹底サポートします。温水洗浄便座/トイレ有/洗面台など素敵な設備豊富ですよ。東急大井町線 戸越公園駅徒歩8分の物件ですよ。広々とした1LDK/40.00㎡の暮らしやすい物件ですよ。築8年/鉄筋コンクリート 魅力的な物件ですよ。

セールスポイント

特徴 防犯カメラ,耐震構造,デザイナーズ,外壁コンクリート,分譲タイプ,2F以上,オートロック,モニタ付オートロック,ダブルロック,ディンプルキー,角住戸,2面採光
設備 エレベーター,ペット専用設備,24時間ゴミ出し可,クリーニングボックス,風除室,敷地内ゴミ置き場,宅配BOX,システムキッチン,ガスコンロ設置済,2口コンロ,グリル,ガスキッチン,バス・トイレ別,ユニットバス,バス有,オートバス,追い焚き風呂,浴室乾燥,脱衣所,シャワー,トイレ有,温水洗浄便座,洗面台,洗面所独立,洗面化粧台,エアコン,照明付き,CATV,マルチメディアコンセント,ネット専用回線,LAN,ネット使用料不要,インターホン,TVインターホン,給湯,24時間換気システム,フローリング,室内洗濯機置場,クローゼット,シューズボックス,人感照明センサー,ガス(都市ガス),下水(公共下水),水道(公営),電気
光ファイバー エレベーター 1基
天井高 空調 1基
部屋外設備 バルコニー(3.84㎡)
駐車場 駐車場:要問い合わせ 駐輪場:有 バイク置き場:有

物件概要

物件名 ZOOM戸越銀座 302号室
物件所在地 東京都品川区戸越2丁目5-10
交通機関 都営浅草線 戸越駅 徒歩5分
東急池上線 戸越銀座駅 徒歩7分
東急大井町線 戸越公園駅 徒歩8分
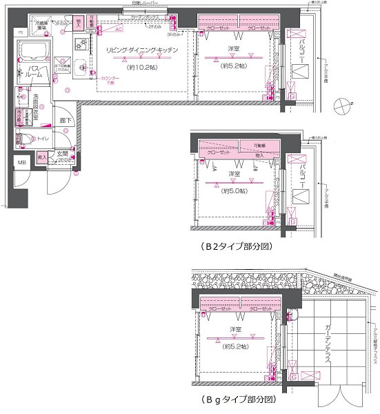
間取り詳細 洋室(5畳) LDK(10.2畳)
専有面積 40㎡
バルコニー面積 3.84㎡
所在階/地上階数 3 / 9 部屋向き 北東
建物構造 鉄筋コンクリート 築年月 2018年3月
総戸数 43
賃料 17.2万円 管理費等 13000円
敷金 1ヶ月 礼金 1ヶ月
保証金 - 更新料 新賃料 1ヶ月
積増し敷金 - 積増し理由
その他一時金 鍵交換費用(税込):33,000円 その他費用 ■契約時:当月分+翌月分の賃料・管理費をお支払い頂きます ■解約時:ルームクリーニング費用及び借主負担分の原状回復費用をお支払い頂きます
その他月次費用 家財保険+付帯サービス(税込):1,835円
損害保険 無 
契約形態 普通借家契約 期間 契約期間:2年
保証会社 必須 トーシンライフ、オリコフォレントインシュア、全保連/保証料:初回=賃料等×50%、月額=賃料等×1% 保証人代行 必須
現況 入居時期 即時 
入居条件 ペット(不可),二人(可)

その他

取引態様 仲介先物 自社管理番号 NN0000099355
情報更新日 2026年3月7日 次回更新予定日 2026年3月14日
不動産会社コード 2108374 物件管理コード 1115362796550000095053
  • ※間取りの「S」はサービスルーム(納戸)です。
  • ※QRコードは(株)デンソーウェーブの登録商標です。

資料請求などはこちら

問い合わせ(無料)

TEL: 03-5465-2111

お問い合わせ番号: NN0000099355

お問い合わせ先:住建ハウジング 上原支店

所在地 : 東京都渋谷区西原3丁目11-17
TEL : 03-5465-2111
免許番号 : 国土交通大臣(9)第3766号
加盟団体 : 公益社団法人全国宅地建物取引業保証協会会員/公益社団法人東京都宅地建物取引業協会会員/首都圏不動産公正取引協議会加盟

この部屋を見学予約

ホームへ戻る