ZOOM広尾 508号室 渋谷区恵比寿[マンション]

ZOOM広尾 508号室 渋谷区恵比寿[マンション]

マンション[渋谷区恵比寿]

物件詳細

ZOOM広尾 508号室 渋谷区恵比寿[マンション]

 

ZOOM広尾 508号室 渋谷区恵比寿[マンション] の物件詳細ページです。

物件種別: マンション

お問い合わせ番号:NN0000099731

間取り(面積)

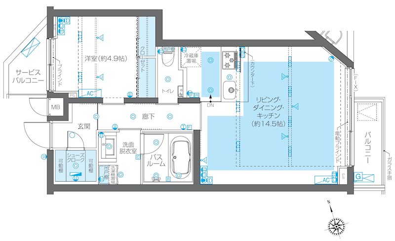
1LDK

( 51.06㎡ )

賃料(管理費等)

34.6万円

( 16000円 )

交通: 東京メトロ日比谷線 広尾駅 徒歩10分

敷金/礼金: 1ヶ月 / 1ヶ月

保証金/敷引/償却金: - / - / -

所在地: 渋谷区恵比寿

築年月: 2020年3月

ポイント

便利な給湯/ネット専用回線/洗面台/エアコン/ブラインド付など素敵な設備豊富です ガスコンロ設置済/グリル/ガスキッチンでお料理好きの方にはぴったりの設備も充実。築5年 素敵な物件はこちら。ディンプルキー/ダブルロック/防犯カメラ/モニタ付オートロック/オートロックを備えており充実設備で入居後も安心して生活できますよ。1LDK/平置駐車場の便利なお部屋で快適にお過ごしいただけます。お気軽に株式会社住建ハウジングまでお問い合わせください。東京メトロ日比谷線 広尾駅/山手線 恵比寿(東京)駅と2駅利用可能。

問い合わせ(無料)

TEL: 03-5465-2111

お問い合わせ番号: NN0000099731

QRコード

  • その他
  • その他
  • その他

資料請求などはこちら

問い合わせ(無料)

TEL: 03-5465-2111

お問い合わせ番号: NN0000099731

スタッフからのコメント

築5年/1LDKの魅力的な物件はこちら 便利な給湯で快適に過ごせますよ。お問合せは株式会社住建ハウジングまで。ディンプルキー セキュリティ対策も重視しております。便利なガスコンロ設置済設置でお料理好きの方にはおすすめの設備が揃っていますよ。素敵な1LDK 51.06㎡の過ごしやすいお部屋です

セールスポイント

特徴 防犯カメラ,耐震構造,デザイナーズ,外壁コンクリート,分譲タイプ,2面バルコニー,2F以上,オートロック,モニタ付オートロック,ダブルロック,ディンプルキー,2面採光
設備 エレベーター,ペット専用設備,24時間ゴミ出し可,クリーニングボックス,敷地内ゴミ置き場,宅配BOX,システムキッチン,ガスコンロ設置済,3口以上コンロ,グリル,ガスキッチン,バス・トイレ別,ユニットバス,バス有,オートバス,追い焚き風呂,浴室乾燥,脱衣所,シャワー,トイレ有,温水洗浄便座,洗面台,洗面所独立,洗面化粧台,エアコン,ブラインド付,照明付き,CATV,マルチメディアコンセント,ネット専用回線,LAN,ネット使用料不要,インターホン,TVインターホン,給湯,24時間換気システム,床暖房,フローリング,室内洗濯機置場,クローゼット,シューズボックス,収納有,人感照明センサー,ガス(都市ガス),下水(公共下水),水道(公営),電気
光ファイバー エレベーター 1基
天井高 空調 1基
部屋外設備 バルコニー(3.25㎡),バルコニー(2.56㎡)
駐車場 駐車場:要問い合わせ 駐輪場:有 バイク置き場:有

物件概要

物件名 ZOOM広尾 508号室
物件所在地 東京都渋谷区恵比寿2丁目27番10号
交通機関 東京メトロ日比谷線 広尾駅 徒歩10分
山手線 恵比寿(東京)駅 徒歩12分
間取り詳細 洋室(4.9畳) LDK(14.5畳)
専有面積 51.06㎡
バルコニー面積 3.25㎡
所在階/地上階数 5 / 6 部屋向き
建物構造 鉄筋コンクリート 築年月 2020年3月
総戸数 65
賃料 34.6万円 管理費等 16000円
敷金 1ヶ月 礼金 1ヶ月
保証金 - 更新料 新賃料 1ヶ月
積増し敷金 - 積増し理由
その他一時金 鍵交換費用(税込):33,000円 その他費用 ■契約時:当月分+翌月分の賃料・管理費をお支払い頂きます ■ペット飼育時:敷金1ヶ月追加(別途飼育細則参照・要申請書) ■解約時:ルームクリーニング費用及び借主負担分の原状回復費用をお支払い頂きます
その他月次費用 家財保険+付帯サービス(税込) :1,835円
損害保険 無 
契約形態 普通借家契約 期間 契約期間:2年
保証会社 必須 トーシンライフ、オリコフォレントインシュア、全保連/保証料:初回=賃料等×50%、月額=賃料等×1% 保証人代行 必須
現況 退去予定 入居時期 期日指定 2026年4月中旬
入居条件 ペット(可),二人(可)

その他

取引態様 仲介先物 自社管理番号 NN0000099731
情報更新日 2026年3月19日 次回更新予定日 2026年3月26日
不動産会社コード 2108374 物件管理コード 1115362796550000095430
  • ※間取りの「S」はサービスルーム(納戸)です。
  • ※QRコードは(株)デンソーウェーブの登録商標です。

資料請求などはこちら

問い合わせ(無料)

TEL: 03-5465-2111

お問い合わせ番号: NN0000099731

お問い合わせ先:住建ハウジング 上原支店

所在地 : 東京都渋谷区西原3丁目11-17
TEL : 03-5465-2111
免許番号 : 国土交通大臣(9)第3766号
加盟団体 : 公益社団法人全国宅地建物取引業保証協会会員/公益社団法人東京都宅地建物取引業協会会員/首都圏不動産公正取引協議会加盟

この部屋を見学予約

ホームへ戻る