リベルダージュ 世田谷区等々力[マンション]

リベルダージュ 世田谷区等々力[マンション]

マンション[世田谷区等々力]

棟詳細

リベルダージュ 世田谷区等々力 マンション

リベルダージュ 世田谷区等々力[マンション]の棟詳細ページです。

物件種別:マンション

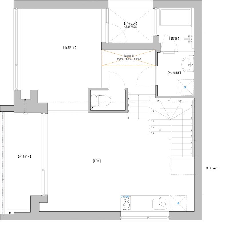
間取り(面積)

1LDK

( 47.4㎡)

賃料

17.8万円

交通: 東急東横線 自由が丘(東急)駅 徒歩12分

所在地: 世田谷区等々力

築年月: 2016年12月

管理費等の月次金がかかることがあります。詳細は各部屋のページでご確認ください。

ポイント

デザイナーズ 自由が丘エリア


  • ※代表的なお部屋の写真と物件情報になります。タイプによっては一部仕様・眺望等が異なる場合があります。
  • ※お部屋により現況と異なる場合は現況を優先いたします。



所在地 東京都世田谷区等々力6丁目5-4
交通 東急東横線 自由が丘(東急)駅 徒歩12分
東急大井町線 九品仏駅 徒歩10分
賃料 17.8万円
土地面積 842.97㎡ (254.99坪)
築年月 2016年12月 (築9年)
延床面積 1297.16㎡ (392.39坪)
建物構造 鉄筋コンクリート 登録空きフロア計 47.4㎡ (14.33坪)
総戸数 21戸 規模 3階建/ 地下1階建



所在階 賃料 管理費/共益費 敷金/礼金 間取り 専有面積 詳細

2階 17.8万円

4000円

/ -

2ヶ月

/ -

1LDK

47.4㎡

(14.33坪)

リベルダージュ の詳細ページ


  • ※間取りの「S」はサービスルーム(納戸)です。

ホームへ戻る