■ご希望の町村をお選びください。(複数選択が可能です。)
■ご希望の条件をお選びください。(複数選択が可能です。)
物件を並べ替え
昇順
降順
マンション
1K
26.17㎡
11.7万円
( 5800円)
交通: 山手線 目黒駅 徒歩10分
敷金/礼金: -/ 175000円
保証金/敷引/償却金: -/ -/ -
所在地: 目黒区三田
築年月: 2017年12月
ポイント
築7年 1Kの魅力的な物件の紹介はこちら。オートロック/防犯カメラ 安心して生活できます コンビニ6・・・
クレイオ三田 104号室の詳細ページ
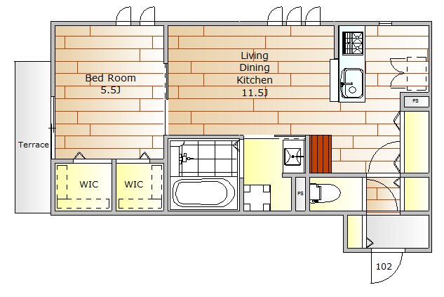
1LDK
39.7㎡
16.0万円
( 10000円)
敷金/礼金: 1ヶ月/ 1ヶ月
保証金/敷引/償却金: -/ -/ 1ヶ月
築年月: 1971年12月
★仲介手数料無料・大規模リノベーション済み物件・ウォークインクローゼット★JR山手線「目黒」駅より徒・・・
秀和目黒レジデンス 102号室の詳細ページ
問い合わせ
(234坪)
クレイオ三田 104号室の 詳細ページ
秀和目黒レジデンス 102号室の 詳細ページ