■ご希望の町村をお選びください。(複数選択が可能です。)
■ご希望の条件をお選びください。(複数選択が可能です。)
物件を並べ替え
昇順
降順
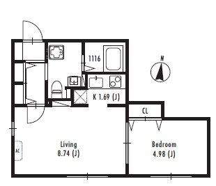
マンション
1LDK
42.14㎡
19.4万円
( 10000円)
交通: 東京メトロ丸ノ内線 新中野駅 徒歩4分
敷金/礼金: 1ヶ月/ 1ヶ月
保証金/敷引/償却金: -/ -/ -
所在地: 中野区本町
築年月: 2009年11月
ポイント
オートロック/モニタ付オートロック/ディンプルキーで一人暮らしでも安心ですよ。ガス給湯/24時間換気・・・
エスティメゾン新中野 307号室の詳細ページ
1K
26.83㎡
10.05万円
( 5000円)
交通: 東京メトロ丸ノ内線 中野新橋駅 徒歩6分
所在地: 中野区弥生町
築年月: 2024年3月
中野新橋徒歩6分の築浅物件! 商店街も近く、閑静な住宅街で新生活♪ 嬉しい独立洗面台付きです 内廊下・・・
ヴェルフローレ 306号室の詳細ページ
2LDK
61.61㎡
19.5万円
交通: 西武新宿線 都立家政駅 徒歩5分
所在地: 中野区鷺宮
築年月: 1994年3月
駐車場空きあり 軽自動車月20,000円(税別)、普通自動車月22,000円(税別) 駐輪場 月50・・・
T`sGarden鷺ノ宮 302号室の詳細ページ
35.07㎡
14.7万円
( 6000円)
交通: 中央線 中野(東京)駅 徒歩10分
所在地: 中野区新井
築年月: 2023年1月
築浅デザイナーズマンション オートロック・防犯カメラ完備と、女性にも嬉しい設備が充実 屋根付き駐輪場・・・
中野レーベル 302号室の詳細ページ
1R
27.8㎡
11.8万円
( 5500円)
交通: 西武新宿線 野方駅 徒歩3分
敷金/礼金: -/ 1ヶ月
所在地: 中野区野方
築年月: 2015年7月
ぜひ株式会社住建ハウジングまでご連絡下さいませ。築10年 鉄骨 1Rの素敵な物件ですよ。便利な洗面所・・・
レオネクストエクセルアサヒⅥ 404号室の詳細ページ
42.75㎡
17.0万円
( 0円)
交通: 中央線 中野(東京)駅 徒歩5分
敷金/礼金: 1ヶ月/ -
築年月: 1998年6月
★事務所使用応相談! ★2人入居応相談! ★ブロードウェイ至近で買い物便利! ★礼金なしキャンペーン・・・
グレースヒルTMY 601号室の詳細ページ
39.44㎡
14.5万円
( 6500円)
交通: 西武新宿線 新井薬師前駅 徒歩10分
敷金/礼金: -/ -
所在地: 中野区松が丘
築年月: 2000年3月
広めの1LDK/39.44㎡/エレベーターの便利な物件で快適にお過ごしいただけますよ。便利なガスコン・・・
ロイヤルガーデン哲学堂 305号室の詳細ページ
21㎡
6.7万円
( 3000円)
交通: 東京メトロ丸ノ内線 中野新橋駅 徒歩5分
築年月: 1980年10月
南向きバルコニーで陽当たり良好!
サーラ弥生 306号室の詳細ページ
33.93㎡
11.0万円
交通: 西武新宿線 野方駅 徒歩9分
築年月: 新築2026年6月
追い焚き風呂が設置されています。お問合せは株式会社住建ハウジングまで。セキュリティ会社加入済/セキュ・・・
(仮)中野区野方2丁目新築 202号室の詳細ページ
47.47㎡
ユニットバス/浴室乾燥/インターホン/クローゼット/バス・トイレ別で設備も充実の素敵な物件です 便利・・・
(仮)中野区野方2丁目新築 102号室の詳細ページ
33.41㎡
13.2万円
( 6900円)
交通: 東京メトロ丸ノ内線 中野坂上駅 徒歩2分
敷金/礼金: -/ 2ヶ月
所在地: 中野区中央
築年月: 2009年6月
オートロック 防犯対策も重視しています。便利なシステムキッチン/ガスコンロ設置済/2口コンロでお料理・・・
ホーメイ ビルディング 302号室の詳細ページ
21.56㎡
12.4万円
( 8000円)
交通: 中央線 中野(東京)駅 徒歩6分
築年月: 2009年7月
便利なシステムキッチン設置で毎日楽しくお料理できますよ。オートロック/ディンプルキー/モニタ付オート・・・
エスティメゾン中野 703号室の詳細ページ
問い合わせ
(234坪)
エスティメゾン新中野 307号室の 詳細ページ
ヴェルフローレ 306号室の 詳細ページ
T`sGarden鷺ノ宮 302号室の 詳細ページ
中野レーベル 302号室の 詳細ページ
レオネクストエクセルアサヒⅥ 404号室の 詳細ページ
グレースヒルTMY 601号室の 詳細ページ
ロイヤルガーデン哲学堂 305号室の 詳細ページ
サーラ弥生 306号室の 詳細ページ
(仮)中野区野方2丁目新築 202号室の 詳細ページ
(仮)中野区野方2丁目新築 102号室の 詳細ページ
ホーメイ ビルディング 302号室の 詳細ページ
エスティメゾン中野 703号室の 詳細ページ